La Importancia de los Planos en un Proyecto: Los Cimientos del Éxito

Los planos son una parte esencial en la concepción y ejecución de proyectos en una amplia variedad de campos, desde la arquitectura y la ingeniería hasta la construcción y la industria manufacturera. Estos documentos gráficos sirven como mapa detallado que guía a los profesionales en la materialización de ideas y objetivos. A continuación, exploraremos la importancia fundamental de los planos en cualquier proyecto y cómo contribuyen al éxito y la eficiencia en su ejecución.

1. Comunicación Clara y Precisa

Los planos actúan como un lenguaje común que conecta a todas las partes involucradas en un proyecto. Los diseñadores, ingenieros, arquitectos, contratistas y otros profesionales pueden comunicar sus ideas de manera clara y precisa mediante dibujos y especificaciones técnicas. Esto reduce la ambigüedad y las interpretaciones erróneas, lo que a su vez minimiza los errores costosos y los retrabajos.

2. Visualización y Diseño Detallado

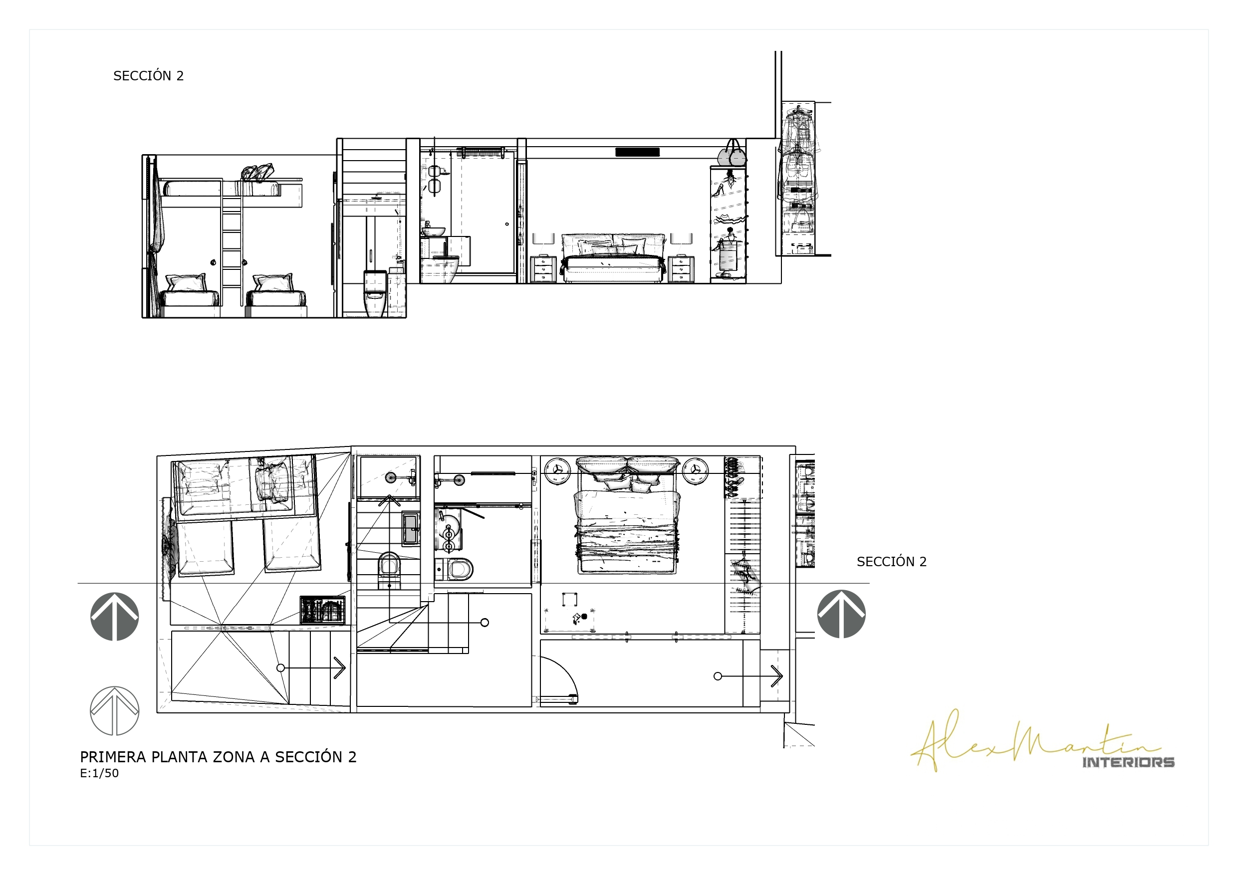
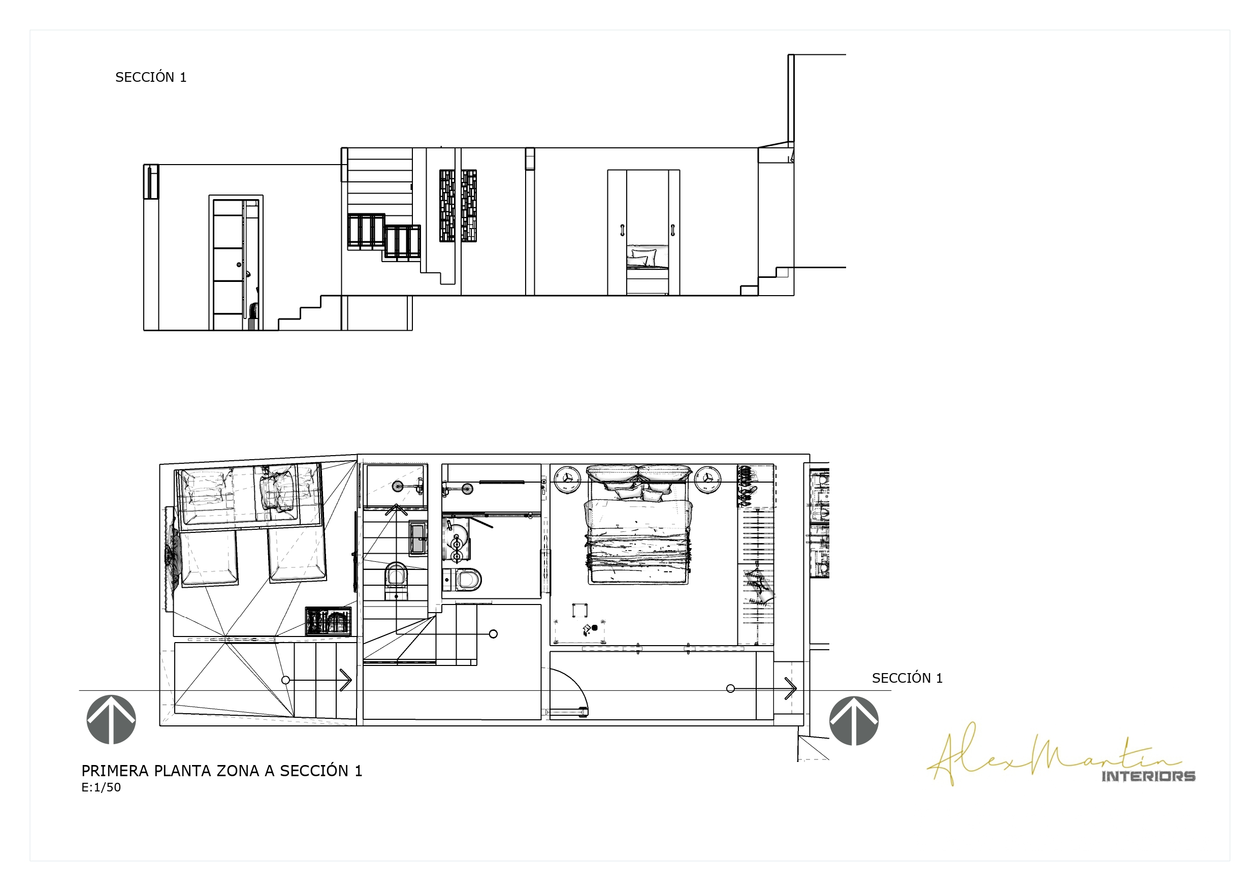
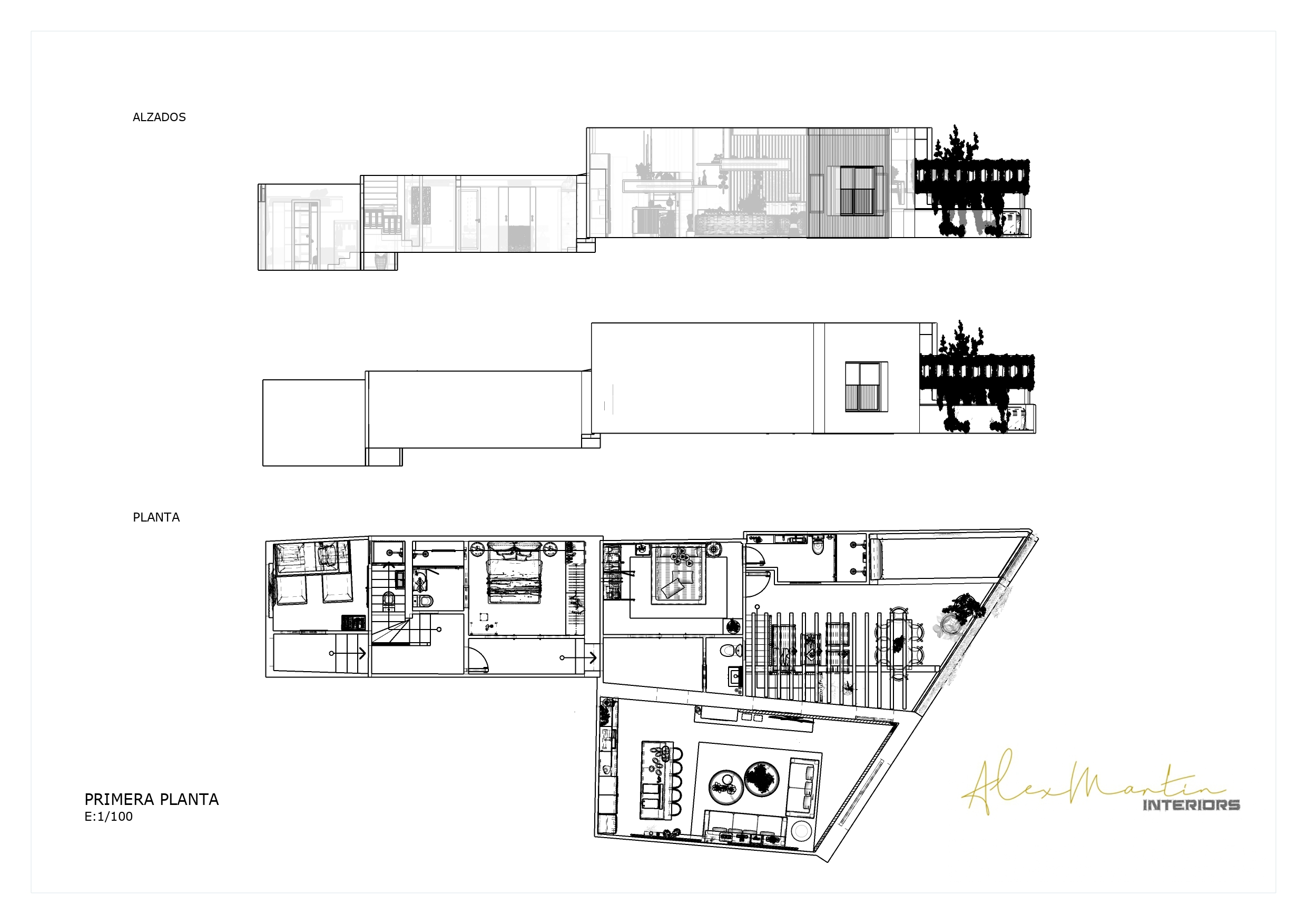
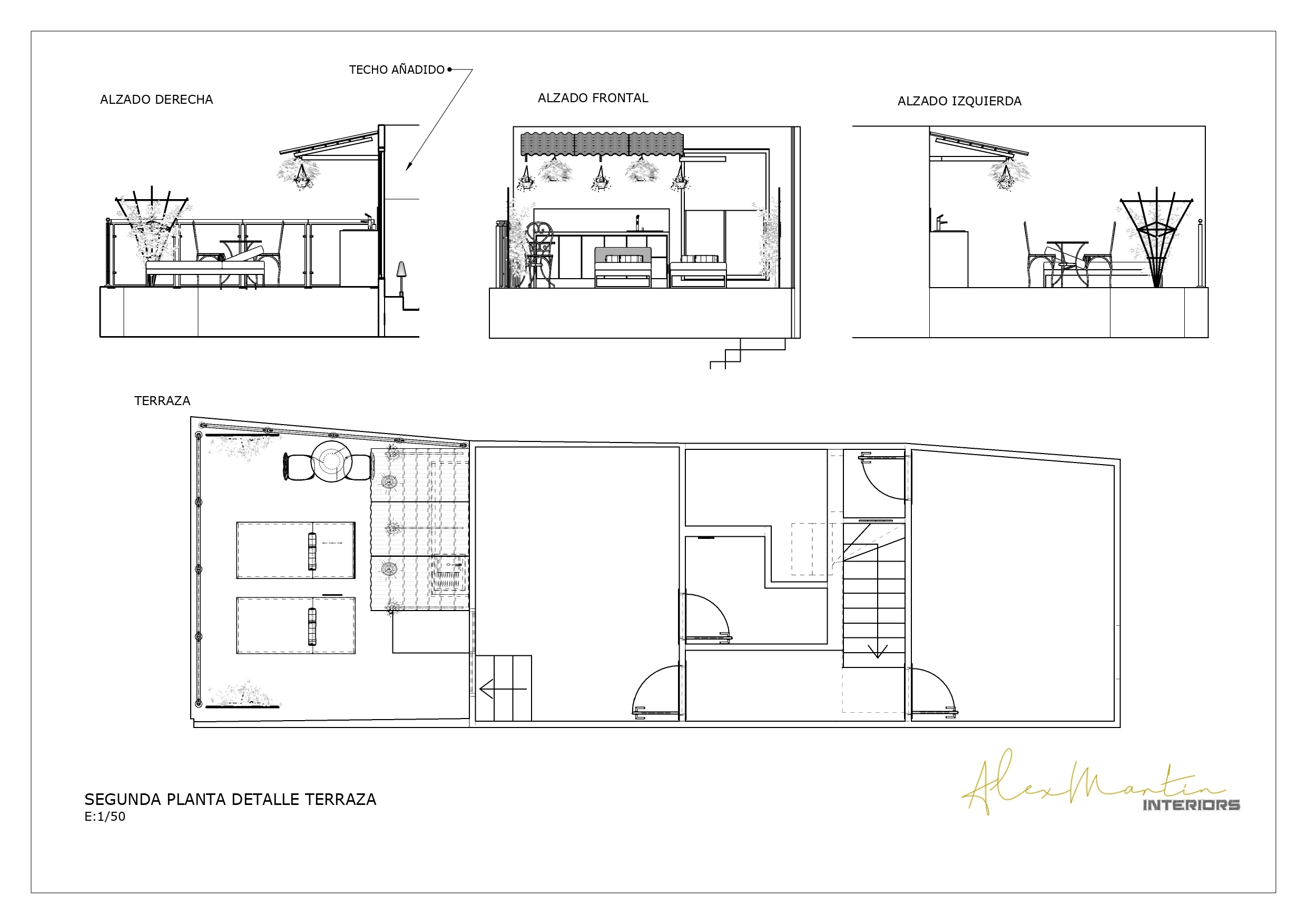
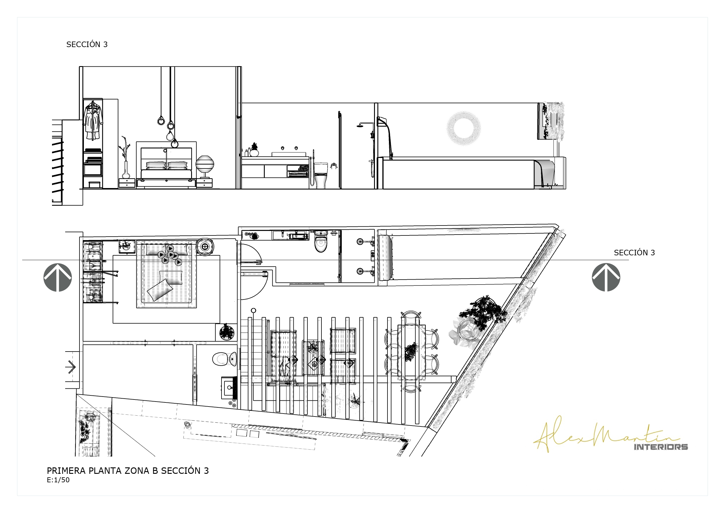
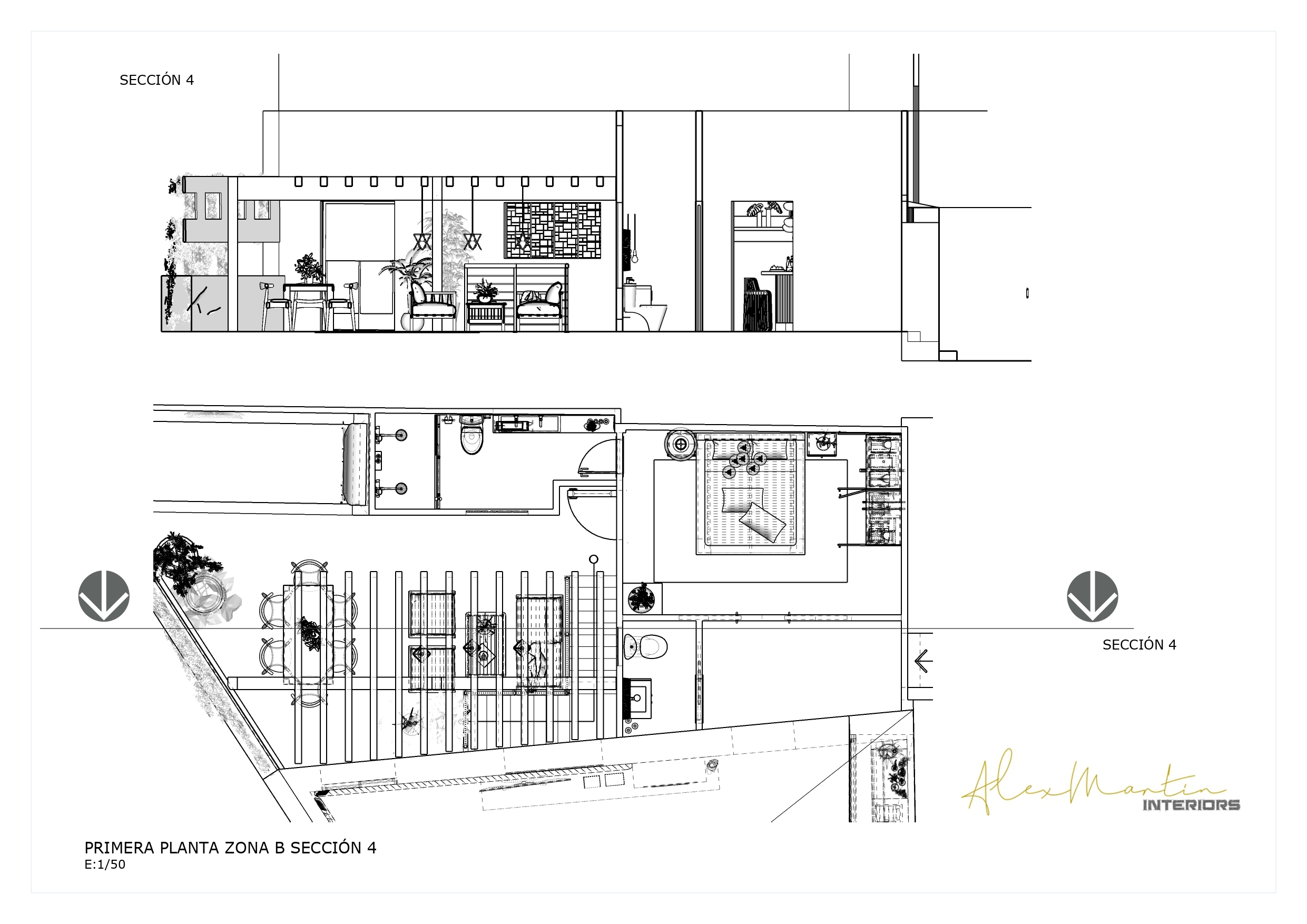
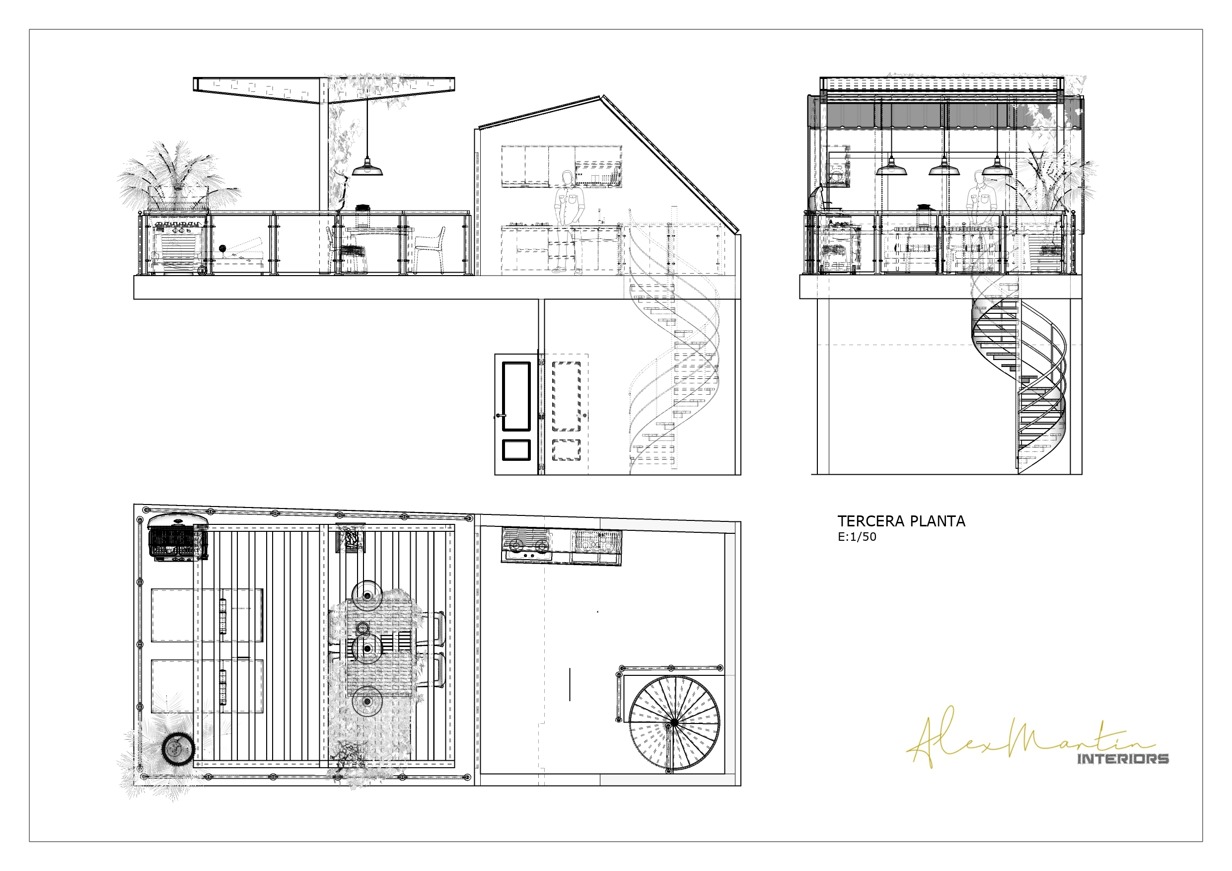
Los planos permiten una visualización detallada de la estructura o producto final. Esto es crucial en la etapa de diseño, ya que proporciona una representación gráfica precisa de cómo se verá y funcionará el proyecto terminado. Los planos también incluyen información técnica importante, como dimensiones, materiales, ubicación de sistemas y más, que son esenciales para la construcción o fabricación.

3. Coordinación y Planificación

Los planos son herramientas valiosas para la coordinación y planificación de tareas. Los equipos de construcción pueden utilizar planos para programar el flujo de trabajo, determinar la secuencia de construcción y asignar recursos de manera eficiente. Esto ayuda a evitar conflictos en el sitio de trabajo y garantiza que todas las partes trabajen juntas de manera armoniosa.

4. Cumplimiento Normativo y Regulatorio

En muchos campos, cumplir con regulaciones y estándares es esencial para garantizar la seguridad y la legalidad de un proyecto. Los planos suelen incluir detalles específicos sobre cómo se cumplirán estas normativas, desde códigos de construcción hasta regulaciones medioambientales. Esto ayuda a los profesionales a garantizar que su proyecto esté en conformidad con todas las leyes y reglamentos aplicables.

5. Control de Costos

Los planos son una herramienta importante en la gestión de costos. Al proporcionar una descripción detallada de la cantidad y el tipo de materiales necesarios, los planos ayudan a calcular los costos de manera más precisa. Esto permite a los propietarios o gerentes de proyectos presupuestar de manera efectiva y controlar los gastos a lo largo de la ejecución del proyecto.

6. Registro Histórico y Documentación

Los planos también actúan como un registro histórico del proyecto. Una vez que se completa, un conjunto completo de planos proporciona documentación detallada de cómo se construyó o fabricó el proyecto. Esto es valioso para futuras referencias, mantenimiento y posibles renovaciones o modificaciones.

En resumen, los planos son una piedra angular en la planificación, ejecución y finalización exitosa de proyectos en una amplia gama de industrias. Proporcionan una comunicación clara, una visualización detallada, coordinación eficiente y documentación precisa. Su importancia radica en su capacidad para convertir ideas en realidad y garantizar que los proyectos se desarrollen de manera eficiente, segura y dentro de los límites presupuestarios y reglamentarios establecidos. Los planos son los cimientos del éxito en cualquier empresa de diseño, construcción o fabricación.





















Contacta

lines